太秦西野町貸家
| 賃料 | 6万円 | 共益費 | -- |
|---|---|---|---|
| 敷金/礼金 | 0ヶ月/2ヶ月 | 保証金/敷引 | 0万円/0万円 |
| 間取り | 4K | 面積 | 50.22m² |
| 階/階数 | 2階建 | 築年月 | S45/06 |
| 小学校区 | 南太秦小学校区 | 中学校区 | 太秦中学校区 |
| 住所 | 京都市右京区太秦西野町 | ||
| 駅/徒歩 |
京福 嵐山本線 帷子ノ辻駅 - 9分 |
||
| 物件番号 | 11668 | ||
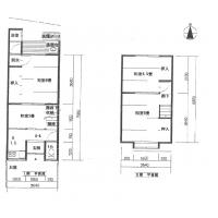
| 間取り詳細 | |||
| 特色 |
バストイレ別、室外洗濯機置場、独立洗面台
|
||
| 備考 |
2025年5月改装済み(キッチン・洗面台新調)、収納多し、前道広いです
|
||
| 地図 |
地図上の位置精度は保証できません
|
||
お気に入り登録
この物件のお問合せ
こちらのリンクより、
物件案内・資料請求・ご質問など
簡単にお問合せいただけます。
電話でお問合せ
電話でお問合せの際は、
物件番号 11668 をお伝えください。
メールでお問合せ
メールでの返答を希望される場合は、
light-h.co.jp ドメインからのメールが
受信できるように設定願います。
関連物件
次の物件一覧から、
この物件に類似した物件を探すことができます。
この物件のお問合せ










お気に入りに追加する
075-864-0012
lh-chintai@light-h.co.jp
帷子ノ辻駅の周辺の物件